- 3 klimatske zone, uključujući sveže hlađenje na 0 °C
- 2 fioke za sveže hlađenje na 0 °C sa 5 unapred podešenih temperatura između -2 °C i +4 °C
- 3 simetrično podeljene staklene police, podesive po visini
- Integrisani aparat za pravljenje leda sa fiksnim vodovodnim priključkom
- Interni dispenser za hladnu vodu
Kontrola
Elektronska kontrola temperature sa prikazom temperature.
Touch tasteri.
Tehničke karakteristike
Dinamična distribucija hladnog vazduha.
Automatsko odmrzavanje sa isparavanjem vode od odmrzavanja.
Alarm za otvorena vrata i kvar.
Zaštita od dece.
Režim mirovanja sertifikovan od strane Star-K.
Režim odmora.
Tamno antracitne boje gornji i bočni paneli spolja.
Filter sa aktivnim ugljem za sistem filtracije vode sa indikatorom zasićenja prikazanim na ekranu.
Filter za vazduh sa aktivnim ugljem.
Odabrane digitalne usluge (Gaggenau Home Connect).
Daljinsko upravljanje i nadzor.
Integracija u kućnu mrežu za digitalne usluge (Home Connect) bežično putem WiFi-ja.
Korišćenje funkcionalnosti Home Connect zavisi od dostupnosti Home Connect usluga, koje nisu dostupne u svakoj zemlji. Za više informacija posetite: home-connect.com.
Hlađenje
Brzo hlađenje.
Podešavanje temperature od +2 °C do +8 °C.
3 podeljene bezbedne staklene police, svih 6 polica sa manuelnim podešavanjem visine.
1 integrisana polica.
2 velike police za vrata za boce.
4 police za vrata, od kojih su 2 podesive po visini.
1 fioka pune širine.
Interni dispenser za vodu sa fiksnim vodovodnim priključkom, integrisan u levu bočnu stranu zida.
LED osvetljenje bez odsjaja (5600 K).
5 unapred podešenih nivoa osvetljenja, takođe putem Home Connect-a.
Unutrašnjost sa stražnjim zidom od nerđajućeg čelika.
Zapremina 335 litara.
Sveže hlađenje 0 °C
2 fioke za sveže hlađenje na 0 °C.
5 unapred podešenih temperatura između -2 °C i +4 °C u kombinaciji sa podešavanjem vlažnosti za ribu i meso, voće, povrće, pića, standard.
Zapremina 67 litara.
Zamrzavanje
No-frost tehnologija sa brzim zamrzavanjem.
Temperatura se može podešavati od -24 °C do -16 °C.
Komora za zamrzavanje sa 4 zvezdice.
Kapacitet zamrzavanja 15 kg /24 h.
Vreme čuvanja nakon kvara 18.5 h.
3 potpuno izvlačive fioke.
Ukupna zapremina zamrzivača: 171 litar.
Aparat za pravljenje leda
Integrisan u komoru za zamrzavanje, sa fiksnim vodovodnim priključkom (ulaz).
Može se isključiti.
Proizvodnja kockica leda približno 1.5 kg/24 h.
Izvadivi kontejner za čuvanje leda sa kapacitetom od približno 3 kg.
Podaci o potrošnji
Klasa energetske efikasnosti E u opsegu klasa energetske efikasnosti od A do G.
Potrošnja energije 333.19 kWh/godina. ¹
Nivo buke 39 dB (A) re 1 pW.
Napomene za planiranje
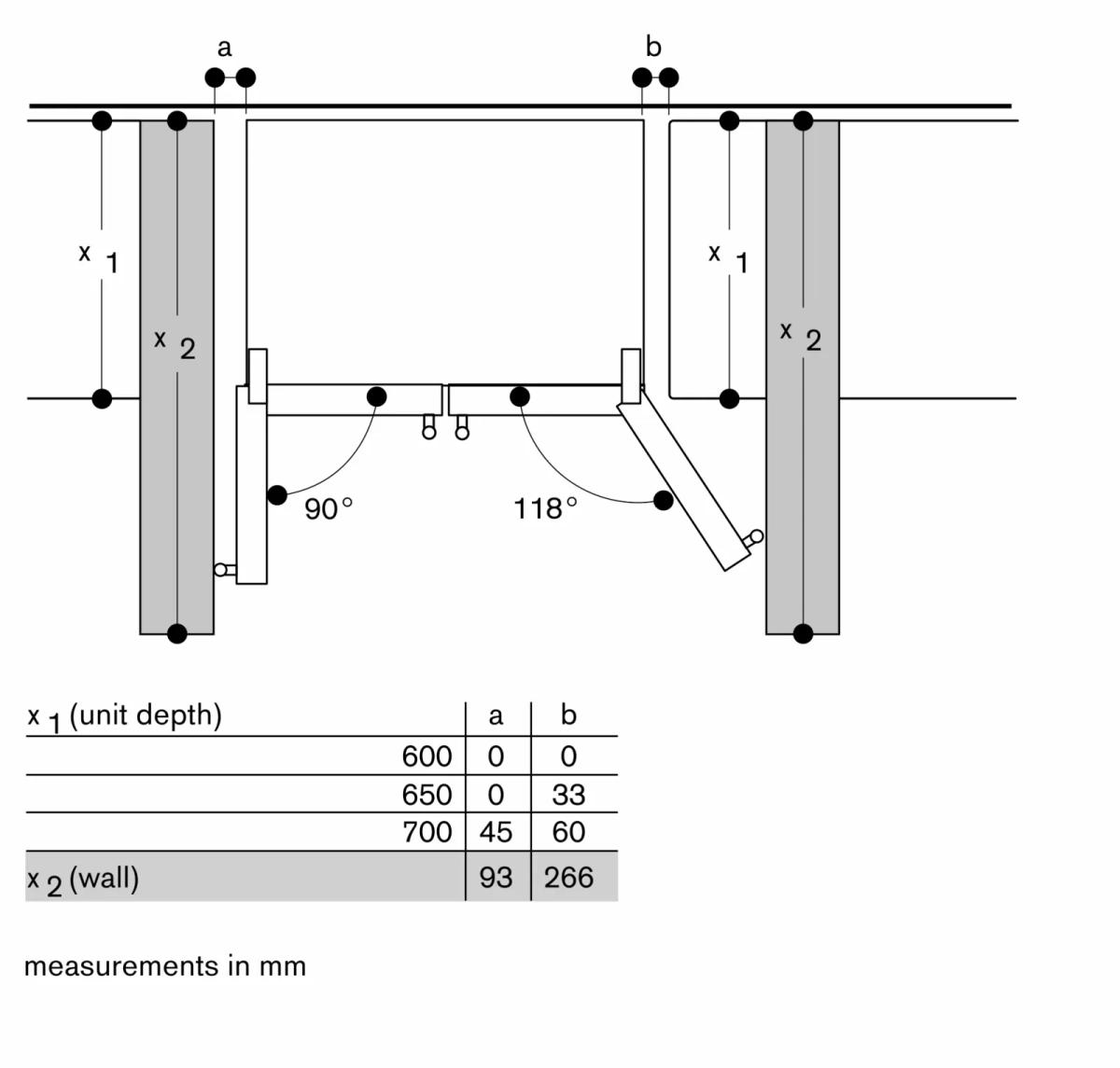
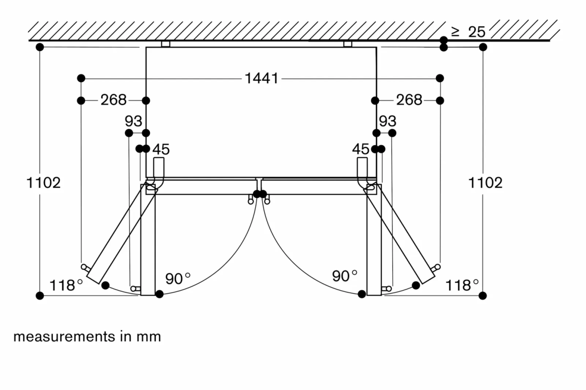
Ugao otvaranja vrata od 118°, može se fiksirati na 90°.
Zareza na zidu od 25 mm je neophodan.
Ako pritisak vode prelazi 0,8 MPa (8 bar), povežite ventil za olakšanje pritiska između slavine i seta creva.
¹ Da bi se postigla deklarisana potrošnja energije, moraju se koristiti priloženi razmaci. Razmaci povećavaju dubinu uređaja za oko 2,5 cm. Bez razmaka, uređaj je potpuno funkcionalan, ali troši malo više energije.
Priključak
Kabl za povezivanje 2,4 m sa utičnicom.
Vodovodni ulaz.
Cev za dovod vode 3,0 m sa 3/4" priključkom.
Vodni pritisak 2 do 8 bar.



























